T型槽平臺開口標準尺寸參照表,鑄鐵T型槽平臺有哪些使用基本常識,T型槽平板,鑄鐵工作臺該怎樣安裝調試,T型槽平臺鑄造之鄉泊頭北重咨詢熱線15720241120.
T型槽平臺又叫T型槽平板,是一種表面帶T型槽用于裝配 ,焊接,測試動力試驗設備的鑄鐵基礎工作臺。河北北重生產的鑄鐵T型槽平臺和試驗平臺一樣嚴格執行行業國家相關標準,使用高強度鑄鐵鑄造,不僅精度穩定,而且堅固耐用。T型槽平板工作面采用的是數控加工機床銑削工藝,保證了鑄鐵工作臺的精度。T型槽鑄鐵平臺工作面一般有T型槽,也可以根據要求加工長孔和圓孔。

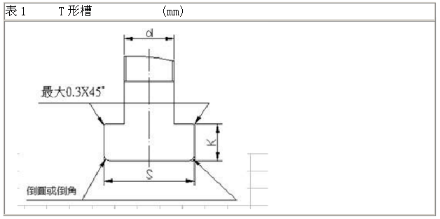
T型槽平臺T型槽尺寸一般標準設計
1.2.10 T型槽尺寸

